【京都市右京区】マンションに彩るステンドグラス
京都市 M様
NEW

お客様のご要望
それまでは一軒家でしたが利便性がよい土地にお引越しすることに。
モノが多いので収納スペースをしっかりと確保したいというのが一番のご要望でした。
2019年に建てられた建物なのでリフォームせずにお住まいになることは十分できました。
ただ、きちんとモノの管理が出来る暮らしがしたいとのことでレイアウトの変更をしました。
また、ご実家にあった思い出のステンドグラスをこの家でも飾りたいというご要望がありました。
施工事例データ
住所
京都市左京区
施工箇所
LDK、洋室
施工内容
床上張り、収納新設
費用
470万円
家族構成
ご夫婦
工期
40日
物件名
6年
使用商材
建具・床・収納:Panasonic
ご提案内容
「モノが多いので何も置かずにスッキリ暮らすのは無理だから納まるようにしたい」
と初めてお会いした時に奥様がお話くださいました。
そこで、どんなものを収納したいか確認していくと、
本やCDなどや洋服、着物などたくさん出てきました。
ご主人様も趣味のゴルフ用品などもたくさん。
まずは全てリスト化し見える化しました。
その中で奥様のイメージは「広い土間玄関の収納があり、ウォークインクローゼットに繋げられたら」というもの。
ただ、ご主人様からは窓のある前にデスクを置きたいというご要望が。
なので、土間玄関ではなく洋室を収納兼書斎のような使い方をすることをご提案。
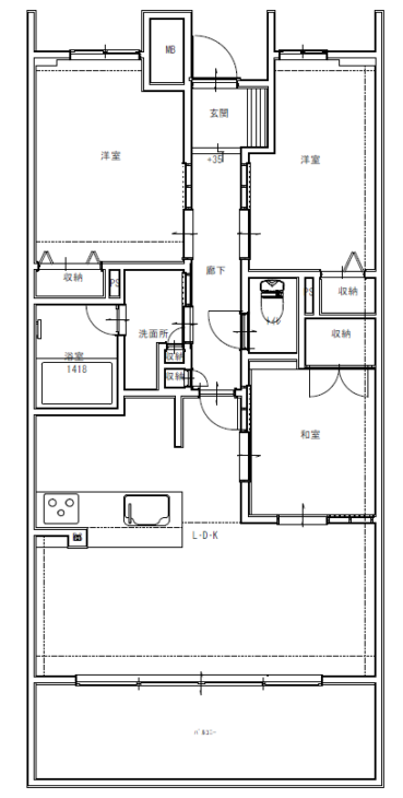
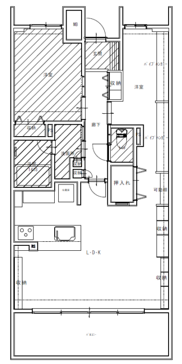
和室を無くし洋室とLDKを繋げ、ウォークスルー出来る収納スペースに。
日々使うものはオープン収納ですが、お布団などの季節ものは押し入れに扉をつけて収納し、
使い分けしてモノの定位置を決めていきました。
手前のアイアンバーにはお着物を着た後に一時的に掛けて置ける場所として設置。
奥にもアイアンバーとフックがありますが鞄などの小物を掛けておく場所として活用。
リビングには奥行の違う壁面収納を設け、アルバムなどの大きいものも収納できます。
思い入れのあるステンドグラスは、いつも見えるように出来たらというご要望がありました。
ただ、ステンドグラスは背後から日光の光があって綺麗に見えるもの。
マンションで外壁に穴を開けたりできないのでどこに設置するかが問題でした。
そこで、背後に間接照明を入れて壁に埋め込むことをご提案。
リビングに設置することでいつも目にすることができ、ステンドグラスの煌めきが
暮らしに癒しを与えてくれます。
背後から太陽の光がフワッと差し込んでいるような雰囲気になりました。
築年数も浅いためそのまま住むことは十分できるマンションでしたが、
リフォームでお施主様の暮らしに合うようにすることでプラスの価値を得て頂きました。
ステンドグラスの施工風景はブログでも更新しています!
リフォーム担当者の声
奥様は今お持ちのモノのサイズなど細かく一覧にして頂き
このスペースで入るのか、一緒に確認しながら進めて行きました。
モノの定位置が決まるととても暮らしやすくなります。
まだ築浅のマンションでリフォームしなくても十分住めましたが
終の棲家として理想の暮らしを目指してお打ち合わせさせて頂きました。
ステンドグラスは職人やメーカー担当者と相談しながらどうしたら綺麗になるか
検討していき、お施主様に「いい感じですね」と言って頂いた時にはとても安心しました。
これから戸建てからマンションの暮らしを楽しんで頂きたいです。
カテゴリ一覧
受賞





































