【亀岡市】外壁・屋根から水まわりまで~ご予算内で叶えたペンダントライトが映えるリフォーム~
亀岡市 F様
限られたご予算の中で優先順位を一緒に考え、外装と内装のバランスを整えながら、お気に入りの照明が映える空間をつくりました。
NEW

お客様のご要望
床の痛みや設備機器が古くなってきておりずっとリフォームしたいと思っていたそう。
1年ほど前からご自身でショールームを巡って「どうしようか」と計画していたとお話くださいました。
いざ、計画を実行するきっかけになったのが翌年に迫ったご主人様の定年退職でした。
今までとはライフスタイルが変わるので、それまでにリフォームしたいとご相談頂きました。
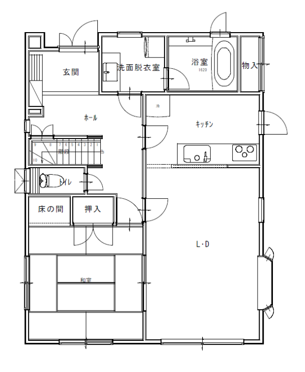
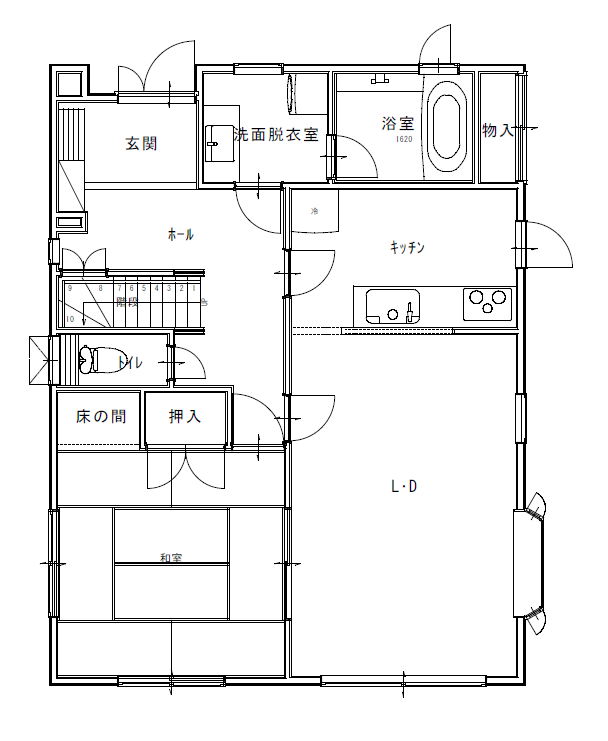
LDKと水廻りを綺麗にしたいというご要望。
お気に入りのステンドグラスの照明を使いたいとお話くださり、インテリアのポイントとしてコーディネートしていくことに。
施工事例データ
住所
京都府亀岡市
施工箇所
LDK・水廻り
施工内容
水回り設備取替、内装工事
費用
1080万円
家族構成
ご夫婦・娘様・犬
工期
50日
物件名
30年
使用商材
キッチン:クリナップ ラクエラ、浴室:リクシル リデア、洗面化粧台:リクシル クレヴィ、トイレ:TOTO GG
ご提案内容
現地調査に行くと外壁と屋根のメンテナンスが必要な時期に差し掛かっていることがわかり、
内装のリフォームと一緒に外壁屋根もリフォームすることをお勧めさせて頂きました。
ただ、予算もありましたのでお客様とご相談し、
外壁塗装と屋根カバー工事も含めてご予算を再検討することに。
その分、内装にかけられるご予算は限られてしまいましたが、
「本当に必要なものは何か?」を改めて一緒に整理し、優先順位を見直していきました。
間取り変更がないので建具や収納は取替ずにそのままでリフォームすることに。
ただ、既存の建具の古さが目立たないように、コーディネートをご提案。
色のトーンを統一することで全体的に新旧の部分がバランスよく自然と馴染みます。
お施主様がもともとお使いになっていたスタイリッシュモダンな雰囲気の家具とも調和するように
グレーを基調としてコーディネート。
洗面は中途半端な空間で使い勝手が悪いのがお悩みでした。
もともとは大きな洗面化粧台の横にできた隙間を、収納として使われていました。
今回は間取りを変えずに、
あえて洗面台のサイズをコンパクトにし、造作の収納棚を設置。
その結果、
✔ 無駄なスペースがなくなり
✔ 収納量もアップし
✔ 見た目もすっきり
と、機能性とデザインの両立ができました。
今回のリフォームで印象的だったのが、奥様がお気に入りペンダントライト。
トイレには、既存の収納棚を活かしながら、そのペンダントライトがしっかり目に入る位置に設置しました。
シンプルな空間の中に、さりげないこだわりが感じられる仕上がりになっています。
また、キッチンにも同じくペンダントライトを採用。
こちらは工事中に実際の空間を見ながら、奥様と一緒に位置を細かく確認して決めていきました。
「ここだと少し手元が暗いかも」
「もう少しこっちの方がきれいに見えるかも」
そんなやり取りを重ねながら決めたことで、空間の中でしっかりと存在感を持つ、“ちょうどいい位置”に。
毎日使う場所だからこそ、見た目の美しさと使いやすさ、どちらも大切に。
お気に入りの照明があることで、暮らしの中に少し気分が上がる瞬間が生まれる。
そんな空間になりました。
リフォームされたお客様の声
元々整理整頓・掃除が苦手でしたが、リフォームをきっかけに断捨離もできましたし、生まれ変わったように生活しています。
ちょっと汚れていたらすぐに掃除するようになったり、収納に収まる分だけを買うようになったり、
今までの自分とは違った自分で過ごせていて「リフォームで人も変われるんだ」というのを実感しています。
観葉植物やインテリアもずっと飾りたかったので、とても満足しています。これからも色々インテリアを楽しみたいと思います。
リフォーム担当者の声
とてもフットワークの軽い奥様は工事前から私のご提案をお聞きになるとすぐに調べたりショールームに行ってみたり、
楽しんでくださっていたので、一緒に打ち合わせをして計画を進めるのが私も楽しかったです。
工事完了してから何度かご自宅にお伺いしましたが、内装に合うインテリアを揃えておられたり、
季節によって飾るものを変えたり、毎日を楽しんでくださっていて嬉しく思っております。
今回は、外装工事を含めたことで、内装のご予算は限られましたが、
その中で優先順位を整理しながら進めた今回のリフォーム。
「すべてを変える」のではなく、
活かすところは活かし、本当に必要な部分にしっかり手をかける。
そんな考え方が、結果的に満足度の高い住まいにつながりました。
カテゴリ一覧
受賞






































